Crafting Dreams into Reality – Majeed and Naseera’s Dream Home
Majeed and Naseera embarked on their dream home journey with a 4-cent plot, envisioning a space that reflects their style and comfort.The total cost, starting at 20 lakhs, reached 25 lakhs with interior and furniture. It proving that luxury and comfort need not come at a hefty price. convenience,cuteness mark this 1100 sq ft single story house in Mannarkkad, Plakkad. Whether you’re on a tight budget or wish to add a touch of luxury, we have the perfect solution for you. This 2BHK 25 lakh home is a perfect example for You.

The heart of the home, the living area. Majeed’s interest in interior design was a driving force in the project. The TV unit shelf and partitions, crafted from multiwood in mica lamination, exude a glossy elegance. The living area showcases superlative interior design. creating a welcoming atmosphere for family and guests alike.
Both bedrooms boast attached bathrooms, with one wall featuring glossy touch-finish texture work, adding a luxurious feel.This adding a layer of glamour and uniqueness. The interior design showcases a perfect balance of style and practicality.
The dining space takes center stage, adorned with a 6-seater dining table. The staircase gracefully positioned near this area adds a touch of sophistication to the overall design.A common bathroom in the dining space ensures convenience, and the overall design fosters a sense of openness and connectivity.
The kitchen is a masterpiece of functionality and design. A breakfast counter not only separates the kitchen and work areas but also eliminates any feeling of congestion. in the kitchen ,everything is arranged for easy accessibility. Majeed and Naseera aimed for a spacious, open kitchen, and they got just that.
The dream home not only meets but exceeds expectations, proving that luxury can be affordable.
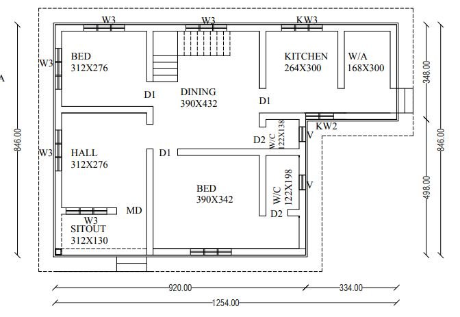
GROUND FLOOR PLAN -1100 Sq ft Home
PROJECT FACTS
Location : Mannarkkad, Plakkad
Area : 1100 sq ft
Plot : 4 cent
Owners : Majeed, naseera
Tottal Budget : 25 lacks with interior and furniture



Stunning 10 Lakh Budget Home: Affordable and Beautiful Design
A Dream Home in Chelakkara – Elegance Meets Simplicity
Compact 2BHK House in Ollur, Thrissur
Cost Effective Eco Friendly House in Wayanad
This compact house is a perfect blend of minimalism