This amazing home in Thrissur , designed by the renowned Veedu 90 Degree Engineers,which has a total space of 2070 sq ft on an attractive 10-cent plot. With a total cost of 57 lakhs, each element of this masterpiece exudes a high level of sophistication.Step into luxury living at its finest with this architectural gem in Chazhoor!
Features a unique L-shaped sitting area that welcomes guests with open arms. The flooring, enhanced with matte finish tiles, sets the tone for refinement, while the interior features a perfect blend of wooden and white themes, both inside and out.
Stepping inside, you’ll find a formal living and dining area separated by a barrier made of MS pipes and plywood with mica lamination, which adds a modern touch. The living area is filled with well managed plants and fascinating curios, which add warmth and character to the space.
Ascend the stairs to be met by a gorgeous blue background wall filled with beautiful artwork that will lead you to the higher floor. A comfortable and attractively decorated living area awaits, providing an ideal spot for relaxing and unwinding.
The bottom floor contains two bedrooms, each with an adjoining bathroom for further convenience. This kitchen has plenty of storage space, elegant black granite kitchen counter tops, and beautiful black-wood color cabinetry.
On the upper floor, a big bedroom awaits, equipped with an attached bathroom and a separate dressing space, providing utmost comfort and luxury.
Vishnu and Lakshmi’s home at Thrissur is more than simply a house; it’s a sanctuary, with each corner telling a narrative of love, warmth, and sophisticated taste. From its meticulous design to its flawless implementation, this home is an accurate reflection of their goals and objectives fulfilled.
2070 SQ FT HOME GROUND FLOOR PLAN
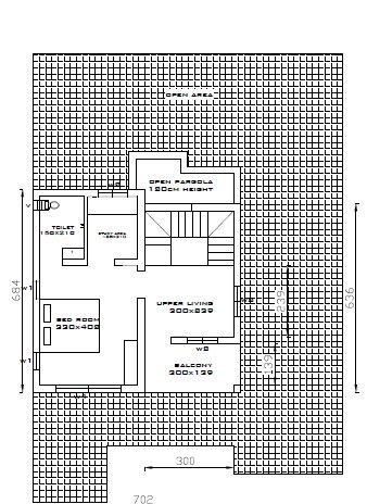
UPPER FLOOR PLAN
Project facts
- Owner -Vishnu, lakshmi
- Total sqft – 2070 sq ft
- Plot – 10 cent
- Location – Chazhoor, thrissur
- Designed by Veedu 90 degree engineers
- Completion year – ,November 2023
- Total coast – 57 lacks



A Stunning Kerala Contemporary House Blending Style and Functionality
Stunning and Beautiful contemporary House at Thrissur
Contemporary style Double Floor Home in Arimpoor, Thrissur
Cost Effective Eco Friendly House in Wayanad
modern amenities, flat – box style elevation make this house stand out