1200 sqft Budget-Friendly Home in Malappuram
This low-budget house exemplifies simplicity and functionality

Mr. Vinoj and Mrs. Sajna’s comfortable home in the peaceful village of Ponnani, Malappuram. This simple kerala house, designed by skilled engineer Shebeer of White Homes Builders, exemplifies simplicity and functionality.
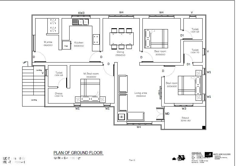
This budget-friendly home, located on a 5-cent plot of 1200 square feet, provides enough space for pleasant living.The house has three bedrooms with adjoining bathrooms, a kitchen, work area, dining room, and a sit-out. Each space is carefully planned to maximise functionality and comfort.
Interior highlights include elegant grey kitchen cabinetry that complements the entire style. The expansive living room emanates an air of openness, making it ideal for family gatherings and time off. Low budget yet stylish: Despite its modest budget, this home doesn’t compromise on style or quality. Every detail is precisely considered to maximise value while remaining within budget. Mr. Vinoj and Mrs. Sajna’s home showcases the beauty of simplicity. It’s more than simply a house; it’s a retreat where comfort meets affordability, resulting in a space to treasure for many years.
1200 sq ft budget friendly house floor plan

Project Facts
Total area : 1200 square feet
Location : Ponnani, Malappuram
Plot : 5 Cent
Client : Mr. Vinoj & Mrs. Sajna
Budget : 25 Lacks with interiorEngineer : Shebeer
White Homes Builders
Guruvayur, Thrissur
Mob : +91 95266 99888





