Sinoj, a dedicated government employee in the health department of Kerala, recently fulfilled his dream of owning a cozy and traditional home in the serene location of Moonnumuri, Thrissur. Designed by the talented Santilal at Costford Triprayar Centre, this 1200-square-foot abode stands as a testament to simplicity, functionality, and traditional architectural elegance.
Traditional charm meets modern comfort
The quaint elevation of Sinoj’s home reflects Kerala’s rich architectural heritage, with its truss roof adorned with roofing tiles that seamlessly blend with the exterior. The exterior walls, made of laterite stone and devoid of cement plastering, add to the rustic charm of the single-floor house. Thoughtful Design for Comfortable Living Inside, the house boasts three bedrooms strategically placed to optimize space and functionality.
Two of the bedrooms feature doors opening into the centre hall, fostering a sense of connectivity and openness. The third bedroom conveniently sits adjacent to the kitchen, reflecting a design that caters to the needs of a small family. The kitchen, designed to suit the needs of a modern family, boasts simplicity and functionality.
Brick-coloured walls complemented by white tiles create a warm and inviting ambiance. The traditional Kerala-style roofing, featuring wood and clay roofing tiles, adds character to the space. The textured work on the washbasin wall adds a touch of artistry and uniqueness to the space. From the choice of materials to the layout and design elements, every aspect of the home reflects a deep-rooted connection to Kerala’s architecture.
Explore the visual story of Sinoj’s home on our Home Pictures YouTube channel. Sinoj’s budget-friendly 15 lakh abode in Moonnumuri, Thrissur, is an example of a budget-conscious construction. !
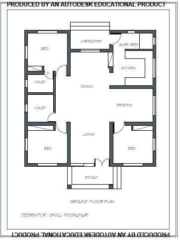
1200 sq ft Sinnoj’s Thrissur House floor plan
Project Overview:
- Size: 1200 sq ft
- Location: Moonnumuri, Thrissur
- Bedrooms: 3
- Budget: Rs. 15 Lakh
- Designer– Santilal Costford Triprayar Center, Thrissur Ph: 9495667290


Stunning 10 Lakh Budget Home: Affordable and Beautiful Design
Contemporary style Double Floor Home in Arimpoor, Thrissur
Compact 2BHK House in Ollur, Thrissur
Cost Effective Eco Friendly House in Wayanad
This compact house is a perfect blend of minimalism