920 Sq ft single storey house in Malappuram
Affordable Comfort: A 920 sq ft Single-Storey Home in Malappuram

Are you dreaming of a cozy, affordable haven in the heart of Malappuram? Look no further!
The architecture of this single-storey house is both simple and functional crafted by Jithin, . With a total of 920 sq ft, it boasts two bedrooms, providing ample space for a small family or individuals seeking simplicity.Nestled on a spacious 7-cent plot near Calicut Airport. However this home offers more than just comfort; it provides easy access to essential amenities. Also , provide the convenience of proximity to transportation hubs.The house offers unparalleled accessibility. Whether it’s for travel or daily commuting, Jithin’s residence is strategically located to make life easier for its occupants.
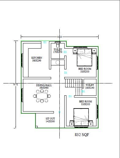
The sit-out area welcomes you, providing a perfect spot to unwind and enjoy the serene surroundings. The living area, strategically placed at the heart of the home. Adjacent to it, a separate dining space offers privacy during meals and intimate conversations. The staircase, cleverly tucked beside the living area, not only enhances the aesthetic appeal but also leads to additional functionality.
Under the staircase, discover a common toilet, making great use of every inch of space. A master bedroom with an attached bathroom and an additional bedroom complete the layout. It providing a comfortable retreat for the entire family. The thoughtful layout ensures privacy and comfort for all occupants.
In conclusion, this single-storey residence is not just a house; it’s a home where comfort meets affordability. A place where every square foot is designed to enhance your living experience. Embrace the charm of Malappuram living with this 920 sq ft gem. Believe it or not, this dreamy 920 sq ft haven is a Wach video10 lakh house!
920 sq ft House floor plan
PROJECT FACTS
- OWNER – Jithin
- LACATION – Near Calicut airport, malappuram
- TOTAL SQUARE FEET – 920 sq ft
- BUDGET – 10 lakhs
- PLOT AREA – 7 cent
- COMPLETION YEAR – 920 sq ft






