Nestled in the quaint town of Irinjalakkuda, Thrissur, lies a charming budget friendly Kerala style home that seamlessly blends traditional architecture with modern comfort. Spread across 8 cents of land, this 1216 sq ft abode offers a glimpse into Kerala’s rich cultural heritage while providing a cozy sanctuary for its inhabitants.
As you approach the house, you’re greeted by the inviting presence of a Thulasi Thara, symbolizing auspiciousness and reverence. The front façade exudes timeless elegance with its natural clay tile roof and laterite stone walls, left unplastered to retain the rustic allure of yesteryears. The entrance door, crafted in a double-door design, beckons you inside with its intricate detailing, hinting at the treasures within.
The interior design reflects Kerala’s traditional architecture. This Kerala home features a sit-out, and the living and dining areas are a mix of old-world elegance and modern functionality. A TV unit serves both purposes, providing entertainment without sacrificing elegance.
The property has three bedrooms with adjoining baths, ensuring privacy and comfort for the whole family. The kitchen, the centre of the home, is meant to be both modern and efficient.
Designed by famous architect Shantilal of COSTFORD, Triprayar, this residence captures the essence of Kerala’s architectural tradition. From the delicate woodwork to the use of local materials, every aspect displays a great respect for history and skill.
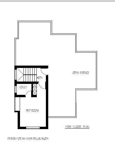
1200 sq ft Kerala style home Floor Plan
FIRST FLOOR PLAN

In today’s fast-paced world, this budget-friendly Kerala-style home exemplifies the timeless value of tradition. Its seamless blend of old-world elegance and contemporary comfort provides a glimpse into Kerala’s rich cultural tapestry while also serving as a sanctuary for modern-day living. Truly, a home where the past and current meet with beauty and elegance.
PROJECT FACTS
- Owner: Vikas
- Location: Iringalakkuda , Thrissur
- Total Budget: 15 lakh
- Total area : 1216 sqft
- Designer: Santilal , Costford Triprayar Center, Thrissur
Contact: +919495667290, +919072701996


🏡 Aksharam – An Eco-Friendly Traditional House at Kodakara, Thrissur
Stunning 10 Lakh Budget Home: Affordable and Beautiful Design
Traditional Slope Roof House at Ernakulam
2900 sq ft Kerala Slope Roof House
Cost Effective Eco Friendly House in Wayanad