Total Area : 2450 Square Fee
Location : Mala, Thrissur
Plot : 10 Cent
Client : Mr. Sanjay Shahul
Completion of the year : March 2023
Total Cost : 65 Lacks
Designer : Shefeena Riyas
Mob : +91 9567737244
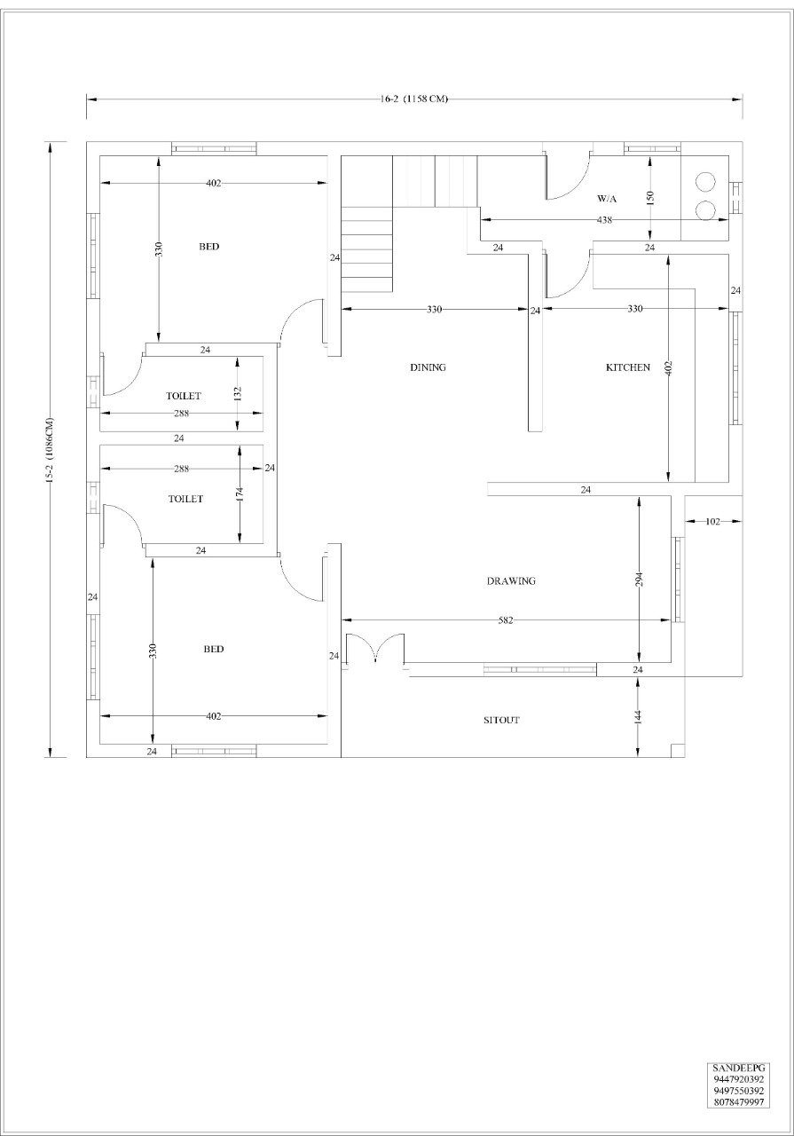
Ground Floor :
Sit out
Living room
Dining area
2 Bedroom with attached bathroom
Kitchen
Work area
First Floor :
Upper living area
2 Bedroom with attached bathroom
Balcony
Open terrace
EXTERIOR
Everyone wants to make their home out standing. The box design and the extended structure from the wall make it beautiful. The total design gives a contemporary touch at the first sight. The flat roof further emphasizes it, making it look very modern and beautiful. The show wall adds a designer element to the exterior. Elaborate interiors and lavish exteriors complemented by lawn and lush green nature, render the house a majestic ambiance. The elegant landscaping is the highlight which elevates the stylish look of the house.

INTERIOR
The house has sit out, living space, dining area, kitchen, work area, upper living area, balcony and 4 bedroom with attached bathrooms, The sit out is arranged in unique design ensuring privacy. The dining and living hall is vast and specious. The cross ventilation ensures that here is enough air circulation inside the house. There are 4 bath attached bedrooms in the house. Each bedrooms is arranged in different themes. Interiors plants are placed on balcony for additional charm. Balcony is equipped with glass handrail. The elaborate front sit out is one of the striking features.
2450 Square Feet 4 Bedroom Contemporary House and Plan
INFORMATION
This design is curated with current trends. Though it covers only an area of 2450 square feet, it looks way more larger. Storage spaces are arranged in all the four bedrooms. The modern modular kitchen has all the facilities. One of the most popular ideas for interior design on a budget is to use the mats as curtain. The stairs lead to the upper living area, which offers a good view of the space on the lower floor. It has 2 bedrooms with attached bathroom on upper storey. There wardrobe and study space in each bedroom. The show wall adds a designer element to the exterior. The designed of this beautiful house design completed by Shefeena Riyas and estimated for about 65 lacks.


Contemporary House at Thrissur: A Modern Marvel in Kandassamkadavu
Smartly designed house in Thrissur
1355 sq ft contemporary flat box type house at Malappuram
This house in Malappuram exudes contemporary features with simple interior
Exploring Dinesh and SreeKala’s 4-Bedroom Kerala House