Jafar’s grand new house that stands in 30 cent plot in the beautiful place of Marayamangalam in Palakkad .This House stands as a testament to tropical home design, where every corner reflects a blend of modern aesthetics and timeless elegance.However ,the exterior of this residence is a testament to tropical design with the perfect blend of modern aesthetics and natural elements.The interiors look spacious and Open layouts and carefully chosen furnishings create an ambiance of luxury and ease.The house boasts a durable and aesthetically pleasing GI truss roof, adding a touch of modernity while ensuring structural integrity.

This Tropical House Design Intent
Interestingly,the wall beside the sit-out area is highlighted using cladding stone.This multicolored cladding stone is element is followed in the upper part of the elevation too. This two-floor house invites you to explore grandeur at every level. From the ground floor’s inviting living spaces to the private retreat of the upper floor, each level tells a story of opulence.Convenience meets style with a separate car porch for two cars. Your vehicles enjoy a sheltered space that adds to the overall functionality of this exquisite home.
The ground floor of this stylish house has sit-out,prayer area,living area,dining space,kitchen with adjacent work area moreover has a spacious fire kitchen and two bedrooms.Meanwhile ,there are three more bedrooms and upper living area in the upper floor.The total area is 2900 sq ft . This two-floor house invites you to explore grandeur at every level.
The construction of this tropical house ,including the structure and furnishing was completed on an budget of 1.3 Cr.
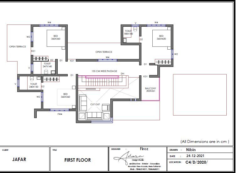
First floor and ground floor plan
Project Facts
Location – Marayamangalam , Palakkad
Owner – Mr.Jafar & Mr.Saleena Jafar
Plot – 30 cents
Area – 2900 sqft
Budget – 1.3 Cr.
Architect – Rayanco Interiors & Builders
Perinthalmanna , Malappuram
Mob. No – 7510690001
Year of completion – 24/09/2023


A Blend of Tradition Architecture and Modernity: 1830 sq ft Home
Exploring Dinesh and SreeKala’s 4-Bedroom Kerala House
1700 square feet Nature-Friendly Home in Kodungallur
This Thrissur home is stunning, with amazing interiors.
A Serene Kerala House in Chalakkudy,Thrissur