1950 Sq ft 4 Bedroom Traditional Style House
1950 Square Feet 4 Bedroom Traditional Style House
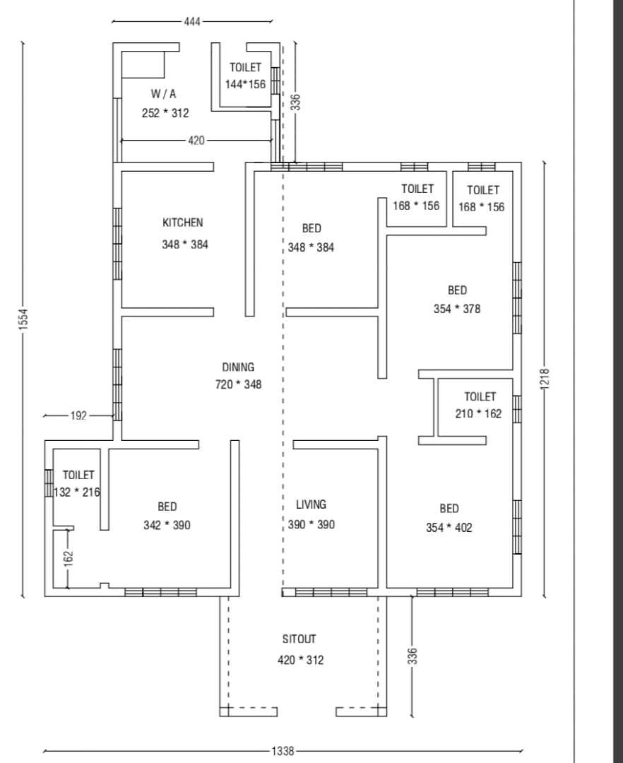
Total Area : 1950 Square Feet
Location : Wadakanchery, Thrissur
Plot : 15 Cent
Client : Mr. Chandrashekhararan & Mrs. Geetha
Completion of the year : August 2023
Total Cost : 38 Lacks
Sit out
Formal living room
Family dining hall
4 Bedroom with attached bathroom
Kitchen
Work area
1 Common toilet
A single storey Kerala house can’t get any better than this. It has an unusual blend of modern and traditional architecture. The top part of the flat roof is nearly invisible, ye the wall connecting to the roof has a charming border to outline the house. All the windows have shades from the outside. While they block out the direct rays of the sun, they match the roof pretty well. Pillars and some portion of the external wall covered with a granite like design that makes it blend in perfectly with the rest of the house.

On the roof top is simple terrace. As if to make up to you for the lack of roofing, simple with plain metal stripes are given. The single and only storey of this house covers an area of 1950 square feet. You’ll also notice how incredibly plain the walls surrounding the house are. However, their plainness serve to accentuate the beauty found in the rest of the house. This house is an example of 4 bedroom house plan with attached bath facility. What’s more, it’ll provide you much needed comfort as with 4 bedrooms with attached bathrooms and every other facility expected in a home.

There is car parking area, sit out, formal living room, family dining hall, kitchen, work area and common toilet which has an area of 1950 square feet. The latest trend is to arrange facilities. The living and dining hall are arranged as part of the specious main hall itself. The interiors are designed in the semi open style. Four bedrooms in the house are bath attached. The kitchen looks small, there are ample space for storage. There is a small work area beside the kitchen, and a wardrobe style storage unit is a highlight here.





