HOME DESIGNS
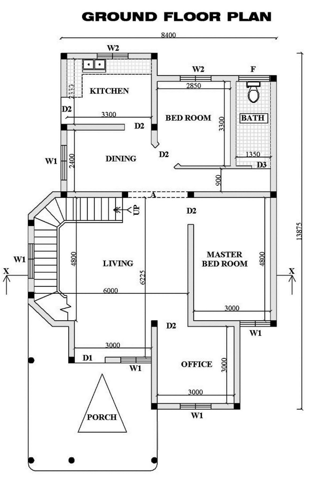
2700 Square Feet Double Floor Kerala Home Design
Advertisement
Advertisement
Tree, the structure of other materials, including brick, or plumbing, ventilation and electrical systems.Most conventional modern houses
Advertisement





