A Serene Kerala House in Chalakkudy,Thrissur
Crafting Comfort: A Serene Kerala House in Chalakkudy, Thrissur

Welcome to the tranquil abode of Krishna Kumar and Saumya in the picturesque locale of Chalakkudy, Thrissur. Situated on a spacious 30-cent plot, this charming Kerala house embodies simplicity, comfort, and elegance.
Location and Plot: Nestled amidst nature’s embrace, this single-floor house spans a total of 1800 square feet.
The design concept combines traditional Kerala architecture with modern elements. A modest elevation emanates timeless elegance and blends seamlessly with the surrounding landscapes.
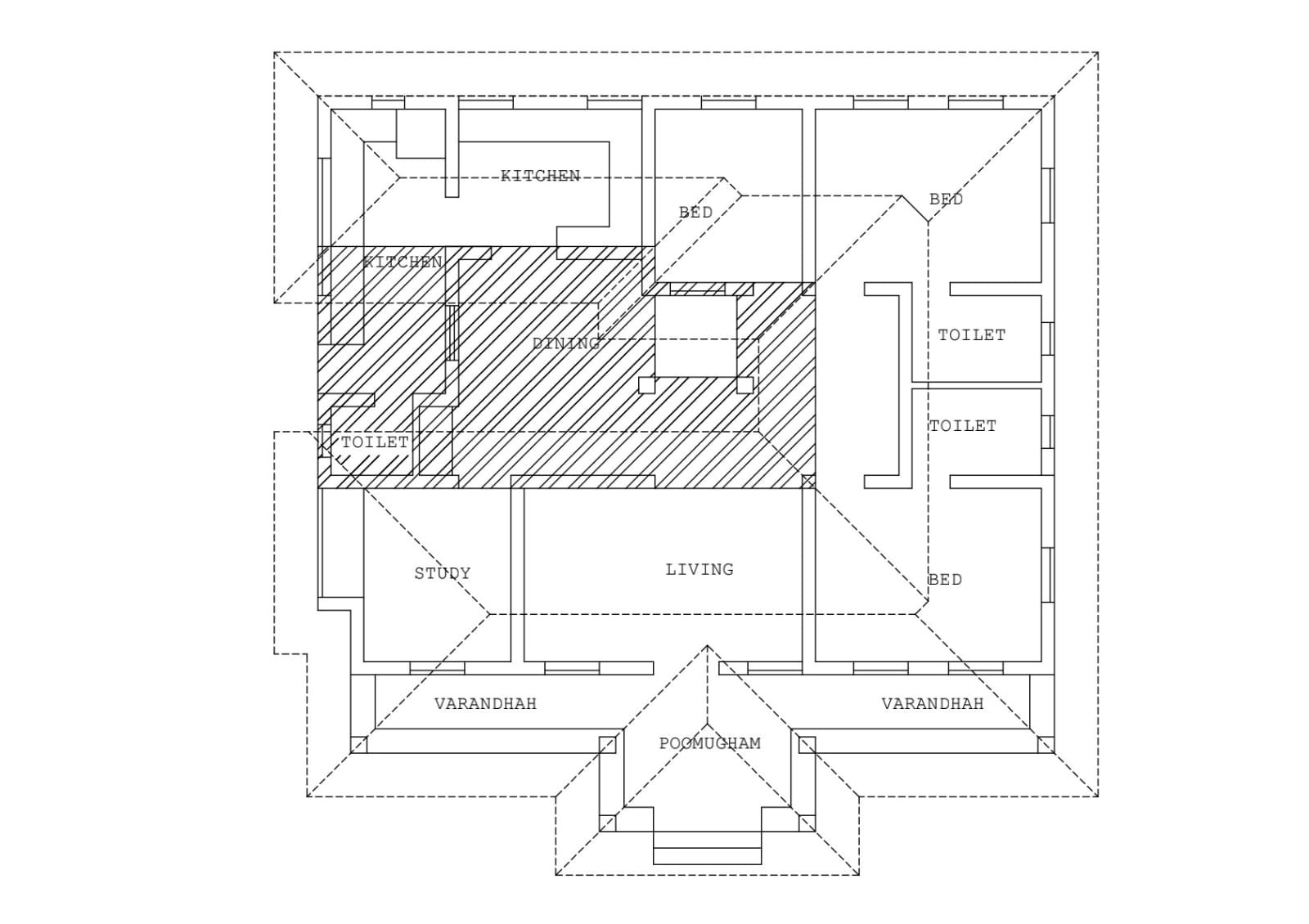
Inside, you’ll find a welcoming and comfortable environment. The property has three bedrooms, each providing cosy comfort and tranquilly. A huge living space awaits you, ideal for family gatherings and moments of leisure. Poomukam, Varanda, and a study room enhance the space’s practicality and attractiveness.
The kitchen is designed to promote culinary innovation, making it the focal point of the home. Adjacent to it is a large dining area where cherished memories are created over great meals shared with loved ones.
This budget-friendly luxury mansion, priced at 39 lakhs, prioritises quality and style without sacrificing affordability. Every aspect is carefully considered to offer optimum value and comfort for the homeowners.
Experience the Tranquility: Krishna Kumar and Saumya’s home is a haven of comfort and elegance. Stay tuned as we go deeper into the process of developing this beautiful Kerala hideaway!
1800 sq ft Kerala house floor plan
PROJECT FACTS
Owner : Krishna kumar, saumya
Location : Chalakkudy, thrissur
Plot : 30 cent plot
Completion of the year : March 2024
Total square feet : 1800 sq ft
Total budget : 39 lacks







One Comment