HOME DESIGNS

Contemporary Modern Home With Plan 4983 Square Feet

Advertisement

Advertisement

Contemporary Modern Home With Plan 4983 Square Feet (1)

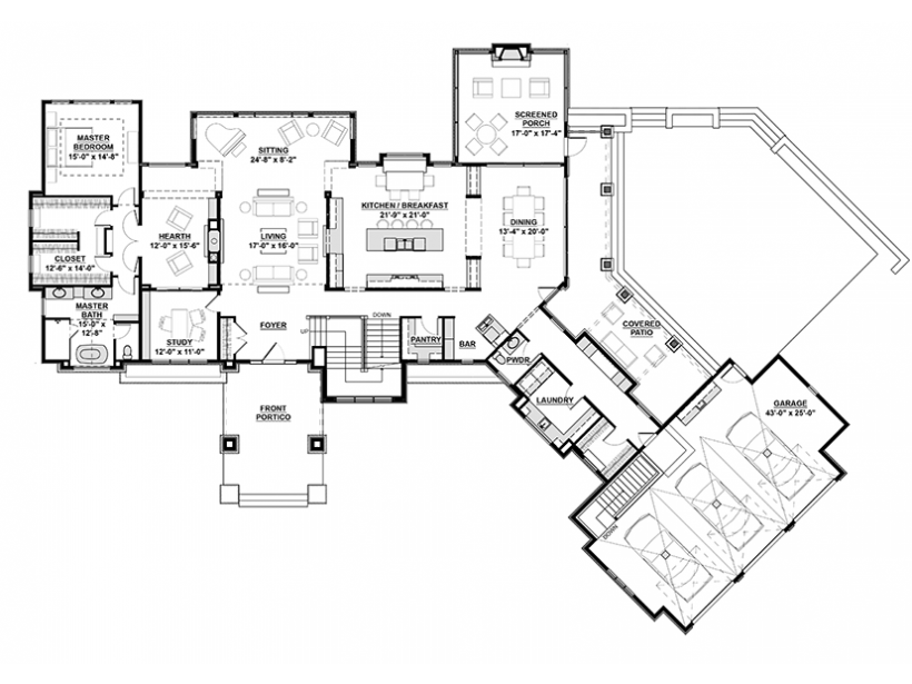
Image 2 of 12

This modern equipped modern plan is designed to help keep pace with the demand characteristics of an active family lifestyle. Has deep overhangs, tall windows, and a large outdoor patio and porch facade cleaning, home flowing visual connection array of public space. kitchen

Advertisement

Leave a Reply

Your email address will not be published. Required fields are marked *

This site uses Akismet to reduce spam. Learn how your comment data is processed.

Back to top button

Adblock Detected

Please disable adblock plugin